-
Shopping cart is empty
-
x
For free delivery are missing
-,--
Free delivery!
Sum NET
0,00 €
Sum Gross
0,00 €
Price includes discounts
Wyprzedaż trwa!
0
your shopping cart
0,00 €
-
Shopping cart is empty
-
x
For free delivery are missing
-,--
Free delivery!
Sum NET
0,00 €
Sum Gross
0,00 €
Price includes discounts
-
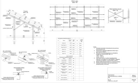
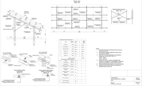
KONSTRUKCJA N4H DWUPODPOROWA GRUNTOWA (L
294.46
294.46
294.46
| Shipping within | 3 days |
| Shipping price | The Lack Of |
| The Availability Of |
|
Order by phone: +48 720829292
N4H two-support ground structure (2 supports, 4 rows, horizontally arranged).
Provides a self-contained ground mounting structure for an array of photovoltaic panels arranged horizontally (4 units one above the other), with a slope of approximately 25/30/35°.
The two-supported structure is placed on the ground by means of individual legs, driven into the ground to a depth of about 150 cm. The killing depth of the legs depends on the type of soil.
Each of the legs has brackets that improve the rigidity of the structure. It is possible to select the structure for the installation of a minimum of 4 panels and more.
Approximate waiting time for the above structure is 2-6 weeks.
*The price is per panel!
